Menü

  • Abschlussarbeiten
  • hsd-pbsa.de ↗︎
  • Impressum
  • Datenschutz
Info
Übersicht

Zurück

Josephin Veldkamp

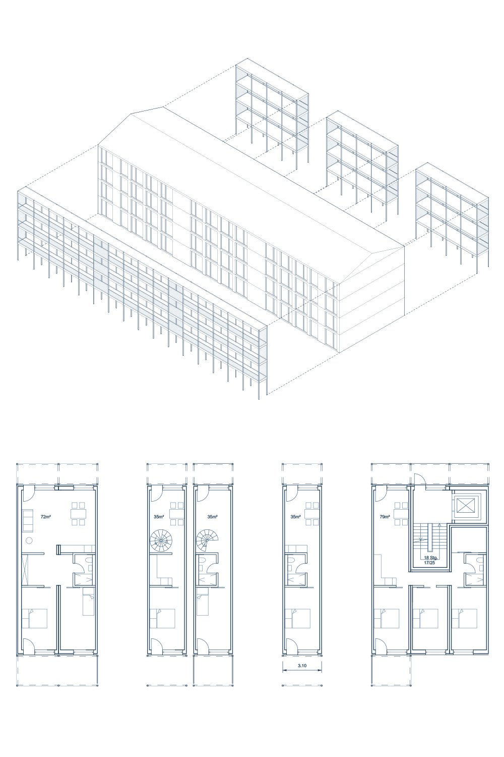
Bergisches Quartier – Umnutzung und Nachverdichtung ehemalige Kaserne

Die Konversionsbrache im Spannungsfeld zwischen urban und ländlich, soll in ein durchmischtes Wohnquartier mit großer Nutzungsvielfalt umgewandelt werden. Dabei lässt sich das Gebiet der ehemaligen Bergischen Kaserne in Düsseldorf Hubbelrath, in zwei Bereiche einteilen: den Denkmalbereich und die Brachfläche. Das Ensemble soll ergänzt und erneuert werden, ohne die bestehende Ordnung zubeeinträchtigen. Der Entwurf der Thesis beschäftigt sich mit der Revitalisierung und Erweiterung des Denkmalbestands und betrachtet einen Block vertiefend. Neue Nutzungen sollen die ehemalige Kaserne wieder öffnen und beleben.

Filter

ArchitekturMasterArchitektur MA
Impressum

© Hochschule Düsseldorf, Peter Behrens School of Arts

Nach oben